CAPÍTULO IX
Capacidad resistente de bielas, tirantes y nudos
Artículo 40º Capacidad resistente de bielas, tirantes y nudos
40.1 Generalidades
El modelo de bielas y tirantes constituye un procedimiento adecuado para explicar el comportamiento de elementos de hormigón estructural, tanto en regiones B como en regiones D (Artículo 24º).
Los elementos de un modelo de bielas y tirantes son las bielas, los tirantes y los nudos.
Los tirantes, habitualmente, están constituidos por armaduras activas o pasivas.
Una biela puede representar un campo de compresiones de ancho uniforme, tal y como se muestra en la figura 40.1.a, o un campo de compresiones de anchura variable o con forma de abanico, tal como se muestra en la figura 40.1.b.

Figuras 40.1.a y b
Un nudo es una zona donde los campos de compresiones o las tracciones de los tirantes se intersecan.
En este Artículo se exponen los criterios de comprobación de cada uno de estos elementos en Estado Límite Último.
Si bien los criterios expuestos en este Capítulo constituyen comprobaciones en Estado Límite Último que no implican la comprobación automática del Estado Límite de Fisuración, se definen aquí algunas limitaciones que, junto con los principios generales expuestos en el Artículo 24º, conducen en la práctica a un control adecuado de la fisuración.
40.2 Capacidad resistente de los tirantes constituidos por armaduras
En Estado Límite Último se supondrá que la armadura alcanza la tensión de cálculo, es decir:
- Para armaduras pasivas
- Para armaduras activas spd = fpd
Cuando no se estudien las condiciones de compatibilidad de una forma explícita, será necesario limitar la deformación máxima de los tirantes en Estado Límite Último y, con ello, se limita indirectamente la tensión de la armadura en Estado Límite de Servicio.
La capacidad resistente de un tirante constituido por armaduras puede expresarse:
AS fyd + Ap fpd
donde:
40.3 Capacidad resistente de las bielas
La capacidad de una biela comprimida está fuertemente influenciada por el estado de tensiones y deformaciones transversales al campo de compresiones así como por la fisuración existente.
40.3.1 Bielas de hormigón en zonas con estados de compresión uniaxial
Este es el caso del cordón comprimido de una viga, debido a esfuerzos de flexión, y cuya capacidad resistente puede evaluarse de acuerdo con los diagramas tensión-deformación indicados en 39.5, donde la tensión máxima para el hormigón comprimido se limita al valor
f1cd = 0,85 fcd
Además de los diagramas definidos en 39.5, podrá utilizarse un diagrama rectangular tal como el indicado en la figura 40.3.1, tomando como tensión máxima el valor de f1cd definido a continuación.


Figura 40.3.1
En este caso, la capacidad resistente de la biela puede expresarse como:
Ac f1cd
donde:
40.3.2 Bielas de hormigón con fisuración oblicua o paralela a la biela
En este caso, el campo de compresiones que constituye una biela de hormigón puede presentar fisuración oblicua o paralela a la dirección de las compresiones.
Debido al estado tensional y de fisuración del hormigón, la capacidad resistente a compresión disminuye considerablemente.
De forma simplificada, se puede definir la capacidad resistente del hormigón en estos casos de la siguiente forma:
- Cuando existen fisuras paralelas a las bielas y armadura transversal suficientemente anclada
f1cd= 0,70 fcd
- Cuando las bielas transmiten compresiones a través de fisuras de abertura controlada por armadura transversal suficientemente anclada (este es el caso del alma de vigas sometidas a cortante).
f1cd= 0,60 fcd
- Cuando las bielas comprimidas transfieren compresiones a través de fisuras de gran abertura (este es el caso de elementos sometidos a tracción o el de las alas traccionadas de secciones en T).
f1cd= 0,40 fcd
40.3.3 Bielas de hormigón con armaduras comprimidas
La armadura puede considerarse contribuyendo efectivamente a la capacidad resistente de las bielas cuando se sitúan en el interior del campo y en dirección paralela a las compresiones y existe armadura transversal suficiente para evitar el pandeo de estas barras.
La tensión máxima del acero comprimido podrá considerarse
s
sd,c= fydcuando sea posible establecer las condiciones de compatibilidad que así lo justifiquen, o
s
sd,c=400 N/mm2cuando no se establezcan condiciones de compatibilidad explícitas.
En este caso, la capacidad resistente de las bielas puede expresarse como:
Ac f1cd + Asc ssd,c
siendo
Asc el área de la armadura de la biela.40.3.4 Bielas de hormigón confinado
La capacidad resistente de las bielas puede aumentarse si el hormigón se confina apropiadamente (figura 40.3.4.a). Para cargas estáticas, la resistencia del hormigón puede aumentarse multiplicando
f1cd por:1+ 1,6
a ww

Figura 40.3.4.a

Figura 40.3.4.b
donde:

donde:
En este caso, la capacidad resistente de las bielas puede expresarse como
ACC(1 + 1,6 a wW)f1cd
donde:
40.3.5 Bielas con Interferencias de vainas con armaduras activas
Si las bielas están atravesadas por vainas de armaduras activas, adherentes o no adherentes, y cuando la suma de los diámetros sea mayor que b/6, siendo b el ancho total de la biela, deberá reducirse el ancho a considerar en la comprobación de la capacidad resistente de acuerdo con el siguiente criterio:
b0 = b - h S
donde:
- Suma de los diámetros de las vainas, al nivel más desfavorable.40.4 Capacidad resistente de los nudos
40.4.1 Generalidades
Los nudos deben estar concebidos, dimensionados y armados de tal forma que todos los esfuerzos actuantes estén equilibrados y los tirantes convenientemente anclados.
El hormigón de los nudos puede estar sometido a estados multitensionales y esta particularidad debe ser tenida en cuenta ya que supone un aumento o disminución de su capacidad resistente.
En los nudos deben comprobarse los siguientes aspectos:
- Que el anclaje de los tirantes está asegurado (Artículos 66º y 67º).
- Que la tensión máxima del hormigón no supere su máxima capacidad: resistente.
40.4.2 Nudos multicomprimídos
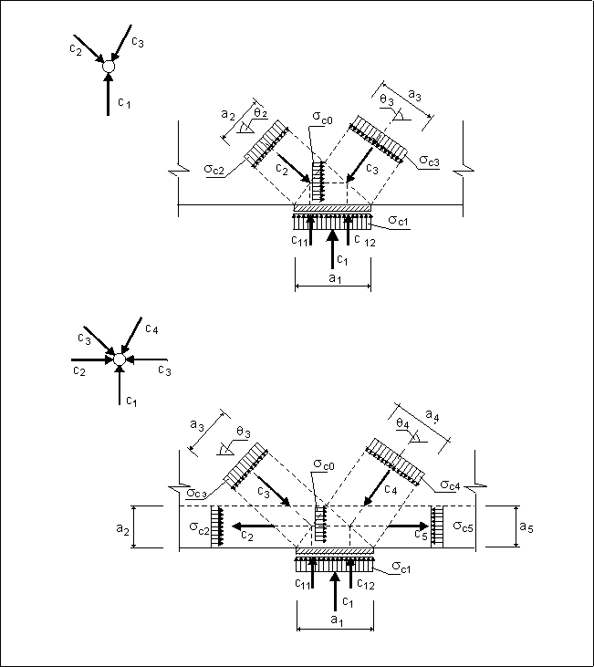
En nudos que conectan sólo bielas comprimidas, tal como se muestra en los ejemplos de la figura 40.4.2, se presenta normalmente un estado tensional multicomprimido que permite aumentar la capacidad resistente a compresión del hormigón de acuerdo con los criterios siguientes:
f2cd = fcd
para estados biaxiales de compresión y
f3cd =3,30 fcd
para estados triaxiales de compresión.
Cuando se consideren estos valores de capacidad resistente a compresión del hormigón del nudo deben tenerse en cuenta las tensiones transversales inducidas, que habitualmente requieren una armadura especifica.

Figura 40.4.2
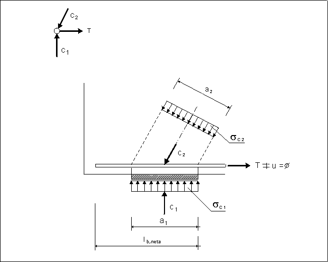
40.4.3 Nudos con tirantes anclados
Nudos característicos de este tipo son los que se muestran en la figura 40.4.3. En este tipo de nudos la capacidad resistente a compresión es:
f2cd = 0,70 fcd

Figura 40.4.3