|
TÍTULO II.- Análisis estructural |
CAPÍTULO V
Análisis estructural
Artículo 17º Generalidades
El análisis estructural consiste en la determinación de los efectos originados por las acciones sobre la totalidad o parte de la estructura, con objeto de efectuar comprobaciones en los Estados Límite Últimos y de Servicio.
Artículo 18° Idealización de la estructura
18.1 Modelos estructurales
Para la realización del análisis, se idealizan tanto la geometría de la estructura como las acciones y las condiciones de apoyo mediante un modelo matemático adecuado. El modelo elegido deberá ser capaz siempre de reproducir el comportamiento estructural dominante.
Para el análisis, los elementos estructurales se clasifican en unidimensionales, cuando una de sus dimensiones es mucho mayor que las restantes, bidimensionales, cuando una de sus dimensiones es pequeña comparada con las otras dos, y tridimensionales cuando ninguna de sus dimensiones resulta sensiblemente mayor que las otras.
18.2 Datos geométricos
18.2.1 Ancho eficaz del ala en piezas lineales
En ausencia de una determinación más precisa, en vigas en T se supone, para las comprobaciones a nivel de sección, que las tensiones normales se distribuyen uniformemente en un cierto ancho reducido de las alas llamado ancho eficaz.
El ancho eficaz depende del tipo de viga (continua o simplemente apoyada), del modo de aplicación de las cargas, de la relación entre el espesor de las alas y el canto de la viga, de la existencia o no de cartabones, de la longitud de la viga entre puntos de momento nulo, de la anchura del nervio y, en fin, de la distancia entre nervios si se trata de un forjado de vigas múltiples.
EI ancho eficaz realmente puede variar a lo largo de la directriz de la viga. Igualmente, el ancho eficaz puede variar en función del estado de fisuración o plastificación de los materiales y, por lo tanto, puede ser distinto en situaciones de servicio y en agotamiento.
Los puntos de momento nulo mencionados en el articulado pueden considerarse fijos, en la práctica, para todas las hipótesis realizadas. Pueden, asimismo, obtenerse a partir de las leyes de momentos debidas a cargas permanentes.
18.2.2 Luces de cálculo
Salvo Justificación especial, se considerará como luz de cálculo de las piezas la distancia entre ejes de apoyo.
18.2.3 Secciones transversales
18.2.3.1 Consideraciones generales
El análisis global de la estructura se podrá realizar, en la mayoría de los casos, utilizando las secciones brutas de los elementos. En algunos casos, cuando se desee mayor precisión en la comprobación de los Estados Límite de Servicio, podrán utilizarse en el análisis las secciones neta u homogeneizada.
18.2.3.2 Sección bruta
Se entiende por sección bruta la que resulta de las dimensiones reales de la pieza, sin deducir los espacios correspondientes a las armaduras.
18.2.3.3 Sección neta
Se entiende por sección neta la obtenida a partir de la bruta deduciendo los huecos longitudinales practicados en el hormigón, tales como entubaciones o entalladuras para el paso de las armaduras activas o de sus anclajes y el área de las armaduras.
18.2.3.4 Sección homogeneizada
Se entiende por sección homogeneizada la que se obtiene a partir de la sección neta definida en 18.2.3.3, al considerar el efecto de solidarización de las armaduras longitudinales adherentes y los distintos tipos de hormigón existentes.
18.2.3.5 Sección fisurada
Se entiende por sección fisurada, la formada por la zona comprimida del hormigón y las áreas de las armaduras longitudinales, tanto activas adherentes como pasivas, multiplicadas por el correspondiente coeficiente de equivalencia.
Artículo 19º Métodos de cálculo
19.1 Principios básicos
Las condiciones que, en principio, debe satisfacer todo análisis estructural son las de equilibrio y las de compatibilidad teniendo en cuenta el comportamiento tenso-deformacional de los materiales.
Generalmente, las condiciones de compatibilidad o las relaciones tenso-deformacionales de los materiales resultan difíciles de satisfacer estrictamente, por lo que pueden adoptarse soluciones en que estas condiciones se cumplan parcialmente siempre que sean equilibradas y que se satisfagan a posteriori las condiciones de ductilidad apropiadas.
19.2 Tipos de análisis
El análisis global de una estructura puede llevarse a cabo de acuerdo con las metodologías siguientes:
- Análisis lineal
- Análisis no lineal
- Análisis lineal con redistribución limitada
- Análisis plástico.
19.2.1 Análisis lineal
Es el que está basado en la hipótesis de comportamiento elástico-lineal de los materiales constituyentes y en la consideración del equilibrio en la estructura sin deformar. En este caso se puede utilizar la sección bruta de hormigón para el cálculo de las solicitaciones.
19.2.2 Análisis no lineal
Es el que tiene en cuenta la no linealidad mecánica, esto es, el comportamiento tenso-deformacional no lineal de los materiales y la no linealidad geométrica, es decir, la consideración del equilibrio de la estructura en su situación deformada.
El comportamiento no lineal hace que la respuesta estructural dependa de la historia de cargas. Por ello, para obtener la carga última es a menudo preciso proceder de forma incremental, recorriendo los rangos elástico, fisurado y previo al agotamiento.
El análisis no lineal requiere, para un nivel determinado de carga, un proceso iterativo en el que, tras sucesivos análisis lineales, se converge a una solución que satisface las condiciones de equilibrio, tenso-deformacionales y de compatibilidad. Estas condiciones se comprueban en un número determinado de secciones, dependiendo de la discretización, que deberá ser suficiente para garantizar que se representa adecuadamente la respuesta estructural.
El comportamiento no lineal lleva intrínseco la invalidez del principio de superposición y, por tanto, el formato de seguridad del Capítulo IV no es aplicable directamente en el análisis no lineal.
19.2.3 Análisis lineal con redistribución limitada
Es aquél en el que los esfuerzos se determinan a partir de los obtenidos mediante un análisis lineal, como el descrito en 19.2.1, y posteriormente se efectúan redistribuciones que satisfacen las condiciones de equilibrio.
El análisis lineal con redistribución limitada exige unas condiciones de ductilidad adecuadas que garanticen las redistribuciones requeridas para las leyes de esfuerzos adoptadas.
19.2.4 Análisis plástico
Es aquel que está basado en un comportamiento plástico, elasto-plástico o rígido-plástico de los materiales y que cumple al menos uno de los teoremas básicos de la plasticidad: el del límite inferior, el del límite, superior o el de unicidad.
Artículo 20° Análisis estructural del pretensado
20.1 Consideraciones generales.
20.1.1 Definición de pretensado.
Se entiende por pretensado la aplicación controlada de una tensión al hormigón mediante el tesado de tendones de acero. Los tendones serán de acero de alta resistencia y pueden estar constituidos por alambres, cordones o barras.
En esta Instrucción no se consideran otras formas de pretensado
20.1.2 Tipos de pretensado
De acuerdo con la situación del tendón respecto de la sección transversal, el pretensado puede ser:
(a) Interior. En este caso el tendón está situado en el interior de la sección transversal de hormigón.
(b) Exterior. En este caso el tendón está situado fuera del hormigón de la sección transversal y dentro del canto de la misma.
De acuerdo con el momento del tesado respecto del hormigonado del elemento, el pretensado puede ser:
(a) Con armaduras pretesas. El hormigonado se efectúa después de haber tesado y anclado provisionalmente las armaduras en elementos fijos. Cuando el hormigón ha adquirido suficiente resistencia, se liberan las armaduras de sus anclajes provisionales y, por adherencia, se transfiere al hormigón la fuerza previamente introducida en las armaduras.
(b) Con armaduras postesas. El hormigonado se realiza antes del tesado de las armaduras activas que normalmente se alojan en conductos o vainas. Cuando el hormigón ha adquirido suficiente resistencia se procede al tesado y anclaje de las armaduras.
Desde el punto de vista de las condiciones de adherencia del tendón, el pretensado puede ser:
(a) Adherente. Este es el caso del pretensado con armadura pretesa o con armadura postesa en el que, después del tesado, se procede a ejecutar una inyección con un material que proporciona una adherencia adecuada entre la armadura y el hormigón del elemento (Artículo 36.2)
(b) No adherente. Este es el caso del pretensado con armadura postesa en el que se utilizan como sistemas de protección de las armaduras inyecciones que no crean adherencia entre ésta y el hormigón dei elemento (Artículo 36.3).
20.2 Fuerza de pretensado
20.2.1 Limitación de la fuerza
La fuerza de tesado P0 ha de proporcionar sobre las armaduras activas una tensión sp0 no mayor, en cualquier punto, que el menor de los dos valores siguientes:
0,75 fpmax k ; 0,90 fpk
donde:
De forma temporal, esta tensión podrá aumentarse hasta el menor de los valores siguientes:
0,85 fpmax k ; 0,95 fpk
siempre que, al anclar las armaduras en el hormigón, se produzca una reducción conveniente de la tensión para que se cumpla la limitación del párrafo anterior.
20.2.2 Pérdidas en piezas con armaduras postesas
20.2.2.1 Valoración de las pérdidas instantáneas de fuerza
Las pérdidas instantáneas de fuerza son aquellas que pueden producirse durante la operación de tesado y en el momento del anclaje de las armaduras activas y dependen de las características del elemento estructural en estudio. Su valor en cada sección es:
D
Pi= DP1+DP2+DP3donde:
20.2.2.1.1 Pérdidas de fuerza por rozamiento
Las pérdidas teóricas de fuerza por rozamiento entre las armaduras y las vainas o conductos de pretensado, dependen de la variación angular total
a del trazado del tendón entre la sección considerada y el anclaje activo que condiciona la tensión en tal sección; de la distancia x entre estas dos secciones; del coeficiente m de rozamiento en curva y del coeficiente K de rozamiento en recta, o rozamiento parásito. Estas pérdidas se valorarán a partir de la fuerza de tesado P0.Las pérdidas por rozamiento en cada sección pueden evaluarse mediante la expresión:

donde:

Figura 20.2.2.1.1
Los datos correspondientes a los valores de m y de K deben definirse experimentalmente, habida cuenta del procedimiento de pretensado utilizado. A falta de datos concretos pueden utilizarse los valores experimentales sancionados por la práctica.
20.2.2.1.2 Pérdidas por penetración de cuñas
En tendones rectos postesos de corta longitud, la pérdida de fuerza por penetración de cuñas, DP2, puede deducirse mediante la expresión:

donde:
En los demás casos de tendones rectos, y en todos los casos de trazados curvos, la valoración de la pérdida de tensión por penetración de cuñas se hará teniendo en cuenta los rozamientos en los conductos. Para ello podrán considerarse las posibles variaciones de m y de K al destesar el tendón, respecto a los valores que aparecen al tesar.
20.2.2.1.3 Pérdidas por acortamiento elástico del hormigón
En el caso de armaduras constituidas por varios tendones que se van tesando sucesivamente, al tesar cada tendón se produce un nuevo acortamiento elástico del hormigón que descarga, en la parte proporcional correspondiente a este acortamiento, a los anteriormente anclados.
Cuando las tensiones de compresión al nivel del baricentro de la armadura activa en fase de tesado sean apreciables, el valor de estas pérdidas, DP3, se podrá calcular, si los tendones se tesan sucesivamente en una sola operación, admitiendo que todos los tendones experimentan un acortamiento uniforme, función del número n de los mismos que se tesan sucesivamente, mediante la expresión:

donde:
20.2.2.2 Pérdidas diferidas de pretensado
Se denominan pérdidas diferidas a las que se producen a lo largo del tiempo, después de ancladas las armaduras activas. Estas pérdidas se deben esencialmente al acortamiento del hormigón por retracción y fluencia y a la relajación del acero de tales armaduras.
La fluencia del hormigón y la relajación del acero están influenciadas por las propias pérdidas y, por lo tanto, resulta imprescindible considerar este efecto interactivo.
Siempre que no se realice un estudio más detallado de la interacción de estos fenómenos, las pérdidas diferidas pueden evaluarse de forma aproximada de acuerdo con la expresión siguiente:

donde:
y

siendo:
20.2.3 Pérdidas de fuerza en piezas con armaduras pretesas
Para armaduras pretesas, las pérdidas a considerar desde el momento de tesar hasta la transferencia de la fuerza de tesado al hormigón son:
a) penetración de cuñas
b) relajación a temperatura ambiente hasta la transferencia
c) relajación adicional de la armadura debida, en su caso, al proceso de calefacción
d) dilatación térmica de la armadura debida, en su caso, al proceso de calefacción
e) retracción anterior a la transferencia
f) acortamiento elástico instantáneo al transferir.
Las pérdidas diferidas posteriores a la transferencia se obtendrán de igual forma que en armaduras postesas, utilizando los valores de retracción y relajación que se producen después de la transferencia.
20.3 Efectos estructurales del pretensado
Los efectos estructurales del pretensado pueden representarse utilizando tanto un conjunto de fuerzas equivalentes autoequilibradas, como un conjunto de deformaciones impuestas. Ambos métodos conducen a los mismos resultados.
20.3.1 Modelización de los efectos del pretensado mediante fuerzas equivalentes.
El sistema de fuerzas equivalentes se obtiene del equilibrio del cable y está formado por:
- Fuerzas y momentos concentrados en los anclajes.
- Fuerzas normales a los tendones, resultantes de la curvatura y cambios de dirección de los mismos.
- Fuerzas tangenciales debidas al rozamiento.
El valor de las fuerzas y momentos concentrados en los anclajes se deduce del valor de la fuerza de pretensado en dichos puntos, calculada de acuerdo con el apartado 20.2, de la geometría del cable, y de la geometría de la zona de anclajes (ver figura 20.3.1).

Figura 20.3.1
Para el caso especifico de vigas, con simetría respecto a un plano vertical, en el anclaje existirá una componente horizontal y otra vertical de la fuerza de pretensado y un momento flector, cuyas expresiones vendrán dadas por:
PKH = PK cosa
PKV = PK sena
MK = PKH e
donde:
Las fuerzas normales distribuidas a lo largo del tendón, n(x), son función de la fuerza de pretensado y de la curvatura del tendón en cada punto, 1/r(x). Las fuerzas tangenciales, t(x), son proporcionales a las normales a través del coeficiente de rozamiento m , según:

20.3.2 Modelización de los efectos del pretensado mediante deformaciones impuestas
Alternativamente, en el caso de elementos lineales, los efectos estructurales del pretensado se pueden introducir mediante la aplicación de deformaciones y curvaturas impuestas que, en cada sección, vendrán dadas por:

donde:
20.3.3 Esfuerzos isostáticos e hiperestáticos del pretensado
Los esfuerzos estructurales debidos al pretensado tradicionalmente se definen distinguiendo entre:
- Esfuerzos isostáticos
- Esfuerzos hiperestáticos
Los esfuerzos isostáticos dependen de la fuerza de pretensado y de la excentricidad del pretensado respecto del centro de gravedad de la sección, y pueden analizarse a nivel de sección. Los esfuerzos hiperestáticos dependen, en general, del trazado del pretensado, de las condiciones de rigidez y de las condiciones de apoyo de la estructura y deben analizarse a nivel de estructura.
La suma de los esfuerzos isostático e hiperestático de pretensado es igual a los esfuerzos totales producidos por el pretensado.
Cuando se compruebe el Estado Límite de Agotamiento frente a solicitaciones normales de secciones con armadura adherente, de acuerdo con los criterios expuestos en el Artículo 42º, los esfuerzos de cálculo deben incluir la parte hiperestática del efecto estructural del pretensado considerando su valor de acuerdo con los criterios del apartado 13.2. La parte isostática del pretensado se considera, al evaluar la capacidad resistente de la sección, teniendo en cuenta la predeformación correspondiente en la armadura activa adherente.
Artículo 21º Estructuras reticulares planas
21.1 Generalidades
Para el cálculo de solicitaciones en estructuras reticulares planas podrá utilizarse cualquiera de los métodos indicados en el Artículo 19º.
21.2 Análisis lineal
El análisis lineal es especialmente adecuado para Estados Límite de Servicio aunque también es válido para Estados Límite Últimos en vigas continuas, pórticos intraslacionales y para obtener esfuerzos de primer orden en pórticos traslacionales, en los que los efectos de segundo orden sean despreciables, de acuerdo con lo establecido en el Artículo 43º.
21.3 Análisis no lineal
21.3.1 Generalidades
El análisis no lineal se puede utilizar tanto para comprobaciones en Estado Límite Último como para comprobaciones en Estados Límite de Servicio.
21.3.2 Niveles y modelos de análisis
Los modelos de análisis no lineal aplicables a vigas y pórticos pueden agruparse en tres niveles, de mayor a menor complejidad: micromodelos para estudios locales, modelos multicapa de análisis seccional no lineal y modelos basados en el concepto de rótulas plásticas.
Para el análisis de este tipo de estructuras es suficiente la utilización de modelos seccionales o los basados en el concepto de rótula plástica.
21.3.3 Modelos de comportamiento de los materiales
Para el caso de pórticos y vigas se aceptarán modelos constitutivos uniaxiales para los materiales, esto es, en los que no se tenga en cuenta la influencia de tensiones transversales a la directriz de la pieza ni en la rigidez ni en la resistencia longitudinal.
21.3.4 Método general de análisis no lineal en teoría de segundo orden
El método general de análisis no lineal en teoría de segundo orden es aquel que considera simultáneamente los efectos de la no linealidad del comportamiento de los materiales, el equilibrio de la estructura en su configuración deformada y los efectos estructurales de las deformaciones diferidas del hormigón.
Dada la interacción existente entre las distintas causas de no linealidad, para obtener de forma realista la respuesta estructural y en particular la carga última, es preciso utilizar diagramas tensión-deformación que representen de forma adecuada el comportamiento instantáneo y diferido de los materiales, tanto en situaciones de servicio como bajo niveles elevados de carga.
21.3.5 Métodos simplificados de análisis en teoría de segundo orden.
Para pórticos traslacionales en los que se requiera un análisis no lineal en teoría de segundo orden, puede ser suficiente realizar un análisis elástico en segundo orden, representando de manera simplificada la reducción de rigidez debida a la no linealidad mecánica.
21.4 Análisis lineal con redistribución limitada
Para la comprobación de los Estados Límite Últimos puede adoptarse como ley de esfuerzos, equilibrada con los esfuerzos exteriores, una que se obtiene partiendo de la determinada en un cálculo lineal a la que, posteriormente, se le aplican redistribuciones (incrementos o disminuciones).
Simplificadamente, y salvo justificación especial, para dinteles de estructuras sensiblemente intraslacionales, se puede admitir una redistribución de los momentos flectores de hasta un 15 por 100 del máximo momento negativo, siempre que la profundidad de la fibra neutra de la sección sobre el soporte, sometida al momento redistribuido, en Estado Límite Último, sea inferior a 0,45d.
21.5 Análisis plástico
La aplicación de este método es válida para la comprobación de Estados Límite Últimos y para estructuras poco sensibles a los efectos de segundo orden.
Debe comprobarse que las rotaciones plásticas requeridas en las rótulas plásticas, para el mecanismo supuesto, son menores que las rotaciones plásticas límite qpl de los elementos estructurales afectados.
Artículo 22º Placas
22.1 Generalidades
Este artículo es aplicable a placas macizas sometidas a flexión en las dos direcciones, con o sin pretensado. También se incluyen en este apartado las placas nervadas, aligeradas y alveolares siempre que su comportamiento, en cuanto a rigidez se refiere, sea asimilable al de una placa maciza.
Para que un elemento bidireccional sea considerado como una placa, debe cumplirse que la luz mínima sea mayor que cuatro veces el espesor medio de la placa.
Se incluyen en este apartado las placas sobre apoyos continuos o aislados.
Para el cálculo de las solicitaciones de placas podrá utilizarse cualquiera de los métodos indicados en el Artículo 19º.
22.2 Análisis lineal
El análisis lineal es válido tanto para los Estados Límite de Servicio como para los Estados Límite Últimos.
Los momentos con gradientes pronunciados en zonas localizadas (por ejemplo, bajo cargas concentradas o apoyos) pueden distribuirse en un área de ancho conveniente, siempre que se cumplan las condiciones de equilibrio.
22.3 Análisis no lineal
EI análisis no lineal se puede utilizar tanto para las comprobaciones en Estados Límite de Servicio como en Estados Límite Últimos.
Pueden utilizarse modelos multicapa o bien relaciones momento-curvatura, combinados con la hipótesis de Kirchhoff.
Podrán considerarse, en el comportamiento del hormigón, los estados biaxiales de tensión la fisuración en varias direcciones, la orientación de las armaduras y la contribución del hormigón traccionado entre fisuras cuyo efecto puede ser especialmente notable en Estados Límite de Servicio.
22.4 Métodos simplificados para placas sobre apoyos aislados
22.4.1 Generalidades
Los procedimientos que se exponen en este apartado son aplicables para el cálculo de esfuerzos en Estados Límite Ultimos de las estructuras constituidas por placas macizas o aligeradas de hormigón armado con nervios en dos direcciones perpendiculares, que no poseen, en general, vigas para transmitir las cargas a los apoyos y descansan directamente sobre soportes de hormigón armado con o sin capitel.
Para cargas verticales pueden utilizarse los dos métodos simplificados de cálculo de esfuerzos que se describen en 22.4.3 ó 22.4.4, según las características tipológicas del forjado.
Para cargas horizontales sólo es válido el método propuesto en 22.4.4 siempre que se utilicen unas características de rigidez de los elementos del forjado compatibles con el fenómeno de transmisión de momentos entre el soporte y la placa y se cumplan las condiciones específicas de disposición geométrica en planta de los soportes, en lo que se refiere a su alineación y su simetría en planta.
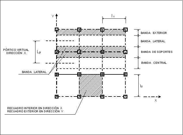
22.4.2 Definiciones
Capitel: ensanchamiento del extremo superior de un soporte que sirve de unión entre éste y la placa. Puede existir o no.
Ábaco: zona de una placa alrededor de un soporte o de su capitel, que se resalta o, si se trata de placa aligerada, se maciza con o sin resalto. En las placas macizas puede no existir y, si existe, puede ir acompañado de capitel. En las placas aligeradas su existencia es preceptiva, pudiendo ir acompañado o no de capitel (figura 22.4.2.a).

Figura 22.4.2.a
Recuadro: zona rectangular de placa, limitada por las líneas que unen los centros de cuatro soportes contiguos. Para una dirección dada, puede ser interior o exterior (figura 22.4.2.b).

Figura 22.4.2.b
Recuadro interior: aquel que, en la dirección considerada, queda situado entre otros dos recuadros.
Recuadro exterior: aquel que, en la dirección considerada, no tiene recuadro contiguo a uno de los lados.
Recuadro de esquina: aquel que no tiene recuadro contiguo en dos de sus, lados.
Luz: distancia entre dos líneas paralelas y consecutivas de soportes. También se llama a cada una de las dimensiones l1, y l2 del recuadro.
Banda de soportes: es una banda de forjado con ancho a cada lado del soporte igual a 0,25 l2. Las bandas de soporte incluyen las vigas, en caso de existir.
Banda central: es la limitada por dos bandas de soportes.
Pórtico virtual: elemento ideal que se adopta para el cálculo de la placa según una dirección dada. Está constituido por una fila de soportes y dinteles de sección igual a la de la zona de placa limitada lateralmente por los ejes más separados de los recuadros adyacentes a la fila de soportes considerados, es decir, que dicha zona comprende una banda de soportes y dos semibandas centrales, una a cada lado.
22.4.3 Método directo
Para cargas verticales, estas placas pueden analizarse estudiando, en cada dirección, los pórticos virtuales que resulten siempre que se cumplan las limitaciones indicadas en 22.4.3.1.
La determinación de los esfuerzos de la placa y los soportes en los diferentes pórticos virtuales podrá realizarse simplificadamente de acuerdo con 22.4.3.2.
22.4.3.1 Campo de aplicación
Para que sea de aplicación este método deberán cumplirse las siguientes condiciones:
a) La malla definida en planta por los soportes, será sensiblemente ortogonal.
Se entiende por malla sensiblemente ortogonal aquélla en la que ningún soporte se desvíe, respecto a la línea de ejes que define al pórtico considerado, más del 10 por 100 de la luz normal al mismo correspondiente a la dirección en que se produce la desviación (figura 22.4.3.1)

Figura 22.4.3.1
b) La relación entre el lado mayor y menor del recuadro no debe ser mayor que 2.
c) La diferencia entre luces de vanos consecutivos no debe ser mayor que un tercio de la luz del vano mayor.
d) La sobrecarga debe ser uniformemente distribuida y no mayor que 2 veces la carga permanente.
e) Deberán existir tres vanos como mínimo en cada dirección.
22.4.3.2 Esfuerzos en las secciones criticas
Los momentos flectores en las secciones criticas, en cada dirección, se determinarán a partir del momento M0 definido a continuación:

donde
:Los momentos de las secciones críticas en apoyos y vanos se definen como un porcentaje del momento M0, de acuerdo con los valores definidos en la tabla 22.4.3.2.
Tabla 22.4.3.2
|
|
Caso A |
Caso B |
Caso C |
|
Momento negativo en apoyo exterior |
30% |
0% |
65% |
|
Momento positivo en vano |
52% |
63% |
35% |
|
Momento negativo en apoyo interior |
70% |
75% |
65% |
Caso A: Placa elásticamente empotrada en los soportes de borde.
Caso B: Placa apoyada en el borde.
Caso C: Placa perfectamente empotrada en ambos bordes, o con continuidad en ambos apoyos (vano intermedio).
Para apoyos interiores se tomará como momento en el apoyo el mayor de los dos determinados según ambos vanos contiguos.
En el caso de vanos extremos encuadrados en el caso A de la tabla 22.4.3.2, la viga o zuncho de borde debe calcularse para soportar por torsión una fracción del momento considerado en el extremo de la placa.
En el caso de vanos extremos encuadrados en el caso A de la Tabla 22.4.3.2, los soportes de apoyo deben dimensionarse para resistir el momento considerado en el extremo de la placa.
Los soportes interiores se dimensionarán para resistir un momento desequilibrado definido de acuerdo con la siguiente expresión:

donde:
A cada tramo de soporte, superior o inferior, se le asignará una fracción del momento a resistir, proporcional a su rigidez.
22.4.4 Método de los pórticos virtuales
Para cargas verticales y horizontales, estas placas pueden analizarse estudiando, en cada dirección, los pórticos virtuales que resulten siempre que se cumplan las limitaciones indicadas en 22.4.4.1.
La definición de las características de las barras que representan la placa y los soportes se obtendrán de acuerdo con los criterios expuestos en 22.4.4.2.
La determinación de los esfuerzos de la placa y de los soportes se realizará calculando los pórticos equivalentes resultantes para todas las hipótesis de carga y teniendo en cuenta las combinaciones más desfavorables.
22.4.4.1 Campo de aplicación
La hipótesis fundamental de este método reside en la no interacción entre pórticos virtuales. Por ello, en las situaciones en que tal interacción pueda ser significativa, no deberá utilizarse. La interacción entre pórticos puede aparecer en las siguientes situaciones:
- asimetrías notables en planta o en alzado (de geometría y rigidez).
- existencia de brochales.
- estructuras sensiblemente traslacionales.
- existencia de elementos de rigidización transversal (pantallas, núcleos).
- acciones no gravitatorias en estructuras no uniformes.
- fuerte descompensación de cargas o de luces.
22.4.4.2 Características de rigidez de las vigas y soportes del pórtico virtual
Para cargas verticales se seguirán los siguientes criterios:
- Para la definición de la inercia de las vigas que representan la placa se considerará la inercia bruta correspondiente al ancho total del pórtico virtual teniendo en cuenta la variación de rigidez existente a lo largo de la barra.
- Para la definición de la inercia de los soportes, teniendo en cuenta el efecto producido por el atado torsional conferido transversalmente por la placa, se considerará una rigidez equivalente Keq de acuerdo con la siguiente expresión:

donde:

Figura 22.4.4.2.a

Figura 22.4.4.2.b

donde:
Para pórticos interiores, K, resulta de la suma de la rigidez torsional de los elementos de atado torsional existentes a ambos lados del soporte considerado. Para pórticos exteriores, K, es la rigidez a torsión del elemento de atado torsional del único recuadro adyacente al soporte considerado.
Para la definición de C puede adoptarse la siguiente expresión (figura 22.4.4.2.b)

Para cargas horizontales se seguirán los siguientes criterios:
- Para la definición de la inercia de las vigas que representan la placa se considerará la inercia bruta correspondiente a un ancho igual al 35 por 100 del ancho del pórtico equivalente, teniendo en cuenta la variación de rigidez existente a lo largo de la barra.
- Para la definición de la inercia de los soportes se seguirán los criterios expuestos para cargas verticales.
22.4.5 Criterios de distribución de momentos en la placa
La distribución de momentos debidos a cargas verticales en las secciones criticas, apoyos y vano, a lo largo de la placa, obtenidos según los procedimientos indicados en 22.4.3 y 22.4.4, se realizará de acuerdo con los criterios definidos en las tablas 22.4.5.a y b.
Tabla 22.4.5.a
|
Momentos negativos |
En soporte interior |
En soporte exterior |
|
Banda de soportes |
75% |
100% |
|
Banda central |
25% |
20% |
Tabla 22.4.5.b
|
Momentos positivos |
En ambos casos |
|
Banda de soportes |
60% |
|
Banda central |
40% |
Los momentos debidos a cargas horizontales deberán ser absorbidos en el ancho de la banda de soportes.
22.4.6 Criterios de distribución de momentos entre la placa y los soportes
Cuando en la unión entre losa y soporte actúe un momento
Md se supondrá que se transmite al soporte por flexión una fracción del mismo igual a kMd y la fracción restante (1-k)Md se transmite por tensiones tangenciales. Para la definición del coeficiente k pueden tomarse, simplificadamente, los valores indicados en la tabla 22.4.6
Tabla 22.4.6
|
c1/c'2 |
0,5 |
1,0 |
2,0 |
3,0 |
|
k |
0,55 |
0,40 |
0,30 |
0,20 |
donde:
Para resistir la parte de momento
kMd, transmitido por flexión, deberá disponerse en la placa la armadura necesaria concentrada en un ancho igual al ancho del soporte más 1,5 veces el canto de la placa o ábaco a cada lado.La fracción
(1-k)Md deberá ser absorbida por torsión, en el zuncho o viga de borde o atado torsional. Asimismo esta fracción de momento deberá ser tenida en cuenta en la distribución de tensiones tangenciales en el perímetro de punzonamiento (Artículo 46º).
Artículo 23º Membranas y láminas
23.1 Generalidades
Se llaman láminas aquellos elementos estructurales superficiales, de espesor pequeño en comparación con sus otras dimensiones, que desde un punto de vista estático se caracterizan por su comportamiento resistente tridimensional.
Las láminas suelen estar solicitadas por esfuerzos combinados de membrana y de flexión, estando su respuesta estructural influida fundamentalmente por su forma geométrica, sus condiciones de borde y la naturaleza de la carga aplicada.
23.2 Tipos de análisis estructural
Para la determinación de esfuerzos y deformaciones, así como para el estudio de la estabilidad de las láminas, se podrá utilizar el análisis lineal, siendo de aplicación todas las hipótesis generales de la elasticidad y las simplificaciones particulares que, para el cálculo clásico de las estructuras laminares, ha sancionado la experiencia. A tales efectos, se supondrá el hormigón sin armar ni fisurar.
Las láminas sometidas a esfuerzos de compresión se analizarán teniendo en cuenta posibles fallos por pandeo. A tal fin, se considerarán las deformaciones elásticas y, en su caso, las debidas a la fluencia, variación de temperatura y retracción del hormigón, los asientos de apoyo y las imperfecciones en la forma de la lámina por inexactitudes durante la ejecución.
También es aplicable el análisis no lineal. En tal caso podrán incluirse los efectos de estados multiaxiales de tensiones en la rigidez y la resistencia del hormigón.
No se admitirá el cálculo plástico para la determinación de esfuerzos, salvo que se justifique convenientemente su aplicación al caso particular estudiado.
Artículo 24° Regiones D
24.1 Generalidades
Son regiones D (regiones de discontinuidad) las estructuras o partes de una estructura en las que no sea válida la teoría general de flexión, es decir, donde no sean aplicables las hipótesis de Bernouilli-Navier o Kirchhoff. Por el contrario, las estructuras o partes de las mismas en que se cumplen dichas hipótesis se denominan regiones B.
Las regiones D existen en una estructura cuando se producen cambios bruscos de geometría (discontinuidad geométrica, figura 24.1.a), o en zonas de aplicación de cargas concentradas y reacciones (discontinuidad estática, figura 24.1.b). Igualmente, una región D puede estar constituida por una estructura en su conjunto debido a su forma o proporciones (discontinuidad generalizada). Las vigas de gran canto o ménsulas cortas (figura 24.1.c) son ejemplos de discontinuidad generalizada.

Figura 24.1.a, b y c
24.2 Tipos de análisis estructural
Se admiten como métodos de análisis de esfuerzos los siguientes:
a) Análisis lineal
b) Método de las bielas y tirantes
c) Análisis no lineal
24.2.1 Análisis lineal
Puede adoptarse la teoría de la elasticidad. El análisis proporciona el campo de tensiones principales y de deformaciones. Las concentraciones de tensiones, como las que se dan en las esquinas o huecos, pueden redistribuirse teniendo en cuenta los efectos de la fisuración, reduciendo la rigidez en las zonas correspondientes.
El análisis lineal es válido tanto para comportamiento en servicio como para Estados Límite Ultimos.
24.2.2 Método de las bielas y tirantes
Este método consiste en sustituir la estructura, o la parte de la estructura que constituya la región D, por una estructura de barras articuladas, generalmente plana o en algunos casos espacial, que representa su comportamiento. Las barras comprimidas se definen como bielas y representan la compresión del hormigón. Las barras traccionadas se denominan tirantes y representan las fuerzas de tracción de las armaduras.
El modelo debe equilibrar los esfuerzos exteriores existentes en la frontera de la región D, cuando se trata de una zona de la estructura, las cargas exteriores actuantes y las reacciones de apoyo, en el caso de una estructura con discontinuidad generalizada. Este tipo de modelos, que suponen un comportamiento plástico perfecto, satisfacen los requerimientos del teorema del límite inferior de la teoría de la plasticidad y, una vez decidido el modelo, el de unicidad de la solución.
Este método permite la comprobación de las condiciones de la estructura en Estado Límite Último, para las distintas combinaciones de acciones establecidas en el Artículo 13º, si se verifican las condiciones de las bielas, los tirantes y los nudos, de acuerdo con los criterios establecidos en el Artículo 40º.
Las comprobaciones relativas al Estado Límite de Servicio, especialmente la fisuración, no se realizan explícitamente, pero pueden considerarse satisfechas si el modelo se orienta con los resultados de un análisis lineal y se cumplen las condiciones para los tirantes establecidas en el Artículo 40º.
24.2.3 Análisis no lineal
Para un análisis más refinado, pueden tenerse en cuenta las relaciones tenso-deformacionales no lineales de los materiales bajo estados multiaxiales de carga, utilizando un método numérico adecuado. En este caso, el análisis resulta satisfactorio para los Estados Límite de Servicio y Últimos.
Artículo 25° Análisis en el tiempo
25.1 Consideraciones generales
El análisis en el tiempo permite obtener los efectos estructurales de la fluencia, retracción y envejecimiento del hormigón, y de la relajación del acero de pretensado. Dichos efectos pueden ser deformaciones y desplazamientos diferidos, así como variaciones en el valor o en la distribución de esfuerzos, reacciones o tensiones.
El análisis se pueden plantear a distintos niveles:
I Análisis paso a paso en el tiempo o método general.
II Método del módulo ajustado a la edad, también conocido como método del coeficiente de envejecimiento.
III Fórmulas simplificadas basadas en la aplicación del método del coeficiente de envejecimiento a casos particulares.
En relación con los fenómenos reológicos, las hipótesis generales válidas para cualquiera de estos procedimientos son:
- La fluencia se considera independiente de la retracción.
- Para cada tipo de hormigón de una sección se podrán adoptar unos valores medios de fluencia y retracción, despreciando, por tanto, las diferencias que puedan producirse entre diferentes puntos.
- La deformación de fluencia es proporcional a la tensión que la produce (fluencia lineal).
- Se acepta el principio de superposición de BoItzmann para evaluar la deformación total debida a acciones aplicadas a distintas edades.
- Estas hipótesis son válidas tanto para el hormigón en tracción no fisurado como en compresión, siempre que las tensiones de compresión no superen el 45% de la resistencia en el instante de aplicación de la carga.
25.2 Método general
Para la aplicación del método general, paso a paso, son de aplicación las siguientes hipótesis:
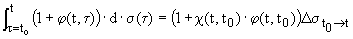
a) La ecuación constitutiva del hormigón en el tiempo es:

En esta ecuación, el primer término representa la deformación instantánea debida a una tensión aplicada en
t0. El segundo término representa la fluencia debida a dicha tensión. El tercer término representa la suma de las deformaciones instantánea y de fluencia de la variación de tensiones que se producen en el instante ti . Por último, el cuarto término representa la deformación de retracción.b) Para los distintos aceros se considera un comportamiento lineal frente a cargas instantáneas. Para aceros de pretensado con tensiones superiores a
0,5 fp,max se tendrá en cuenta la relajación y el hecho de que ésta se produce a deformación variable.c) Se considera que existe adherencia perfecta entre el hormigón y las armaduras adherentes y entre los distintos hormigones que pudieran existir en la sección.
d) En el caso de elementos lineales, se considera válida la hipótesis de deformación plana de las secciones.
e) Se deben verificar las condiciones de equilibrio a nivel de cualquier sección.
f) Se debe verificar el equilibrio a nivel de estructura teniendo en cuenta las condiciones de apoyo.
25.3 Método del coeficiente de envejecimiento
Para la aplicación del método del coeficiente de envejecimiento son válidas las hipótesis planteadas en 25.2 con las siguientes simplificaciones adicionales:
a) La deformación producida por la variación de tensión del hormigón a lo largo del tiempo podrá tomarse igual a la que produciría dicho incremento de tensión, aplicado en un instante intermedio y mantenido constante.

donde
c es el coeficiente de envejecimiento. El valor de c puede determinarse, para cualquier instante, mediante un cálculo paso a paso y puede tomarse igual a 0,80 para tiempo infinito.b) La relajación a deformación variable podrá evaluarse de forma simplificada, a tiempo infinito, como la relajación a longitud constante multiplicada por un factor reductor igual a 0,80.
25.4 Simplificaciones
A partir de las expresiones expuestas en 25.3 es posible deducir una serie de fórmulas simplificadas, despreciando, según el caso, la diferencia entre características homogeneizadas a tiempo cero y a tiempo infinito o despreciando el efecto hiperestático de las deformaciones impuestas.